Skip to content
Home
About
Services
Mood Boards
Contact
Research
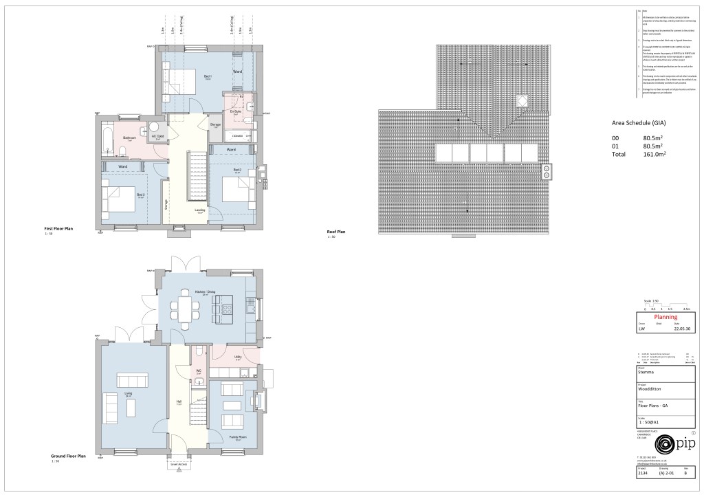
Woodditton
A project for the design of two new build family homes in the village of Woodditton, this is a project I was leading whilst worked at at PiP Architects.
Loading Comments...
Write a Comment...
Email (Required)
Name (Required)
Website
Aedra Architecture
Sign up
Log in
Copy shortlink
Report this content
Manage subscriptions